I30 L|I|V|I|N|G - ILTISSTRASSE 30 - WOHNUNGEN
I30 L|I|V|I|N|G - ILTISSTRASSE 30 - WOHNUNGEN Waldtrudering - Energieeffizientes Mehrfamilienhaus mit 8 attraktiven Wohnungen sowie zwei familiengerechte Doppelhaushälften in ruhiger & stadtnaher Lage
Die Doppelhaushälften sind bereits verkauft!
Die RS WOHNBAU GmbH plant in einer der schönsten Straßen von Waldtrudering, der Iltisstraße, erneut ein exklusives Bauvorhaben - Ein energieeffizientes KfW-40-Mehrfamilienhaus (EE-Klasse A+) mit lediglich acht Eigentumswohnungen sowie zwei attraktive, familienfreundliche Doppelhaushälften inklusive Tiefgarage. Das Achtfamilienhaus wird aus je drei Zwei-Zimmer-Wohnungen im Erdgeschoß und Obergeschoß sowie zwei Dachgeschoßwohnungen mit Dachterrasse bestehen. Die Terrassen, Loggias und Balkone sind großzügig und der Sonnenseite zugewandt geplant. Die Erdgeschoßwohnungen erhalten eigene Gartenanteile. Die sehr schön geschnittenen Doppelhaushälften werden ebenfalls über eine direkte Anbindung an die Tiefgarage, mit zwei eigenen großen Einzelstellplätzen, verfügen. Bei der Planung der Wohnungen und des Doppelhauses wurde größter Wert auf eine ansprechende Grundrissgestaltung mit vielen bodentiefen Fenstertür-Elementen und großen Dachflächenfenstern sowie Gauben gelegt. Die tageslichthellen Bäder werden allesamt eine separate Dusche und ein Fenster haben. Bei den Doppelhäusern liegt in der Planung der Schwerpunkt auf einer möglichst komfortablen, optimal für Familien nutzbaren Raumgestaltung mit einem entsprechenden Wohlfühlambiente.
In bekannter und bewährter RS-Wohnbau-Qualität werden individuell gestaltete Wohnräume geschaffen. Durch ein solides Ziegelmauerwerk, hochwertige Baumaterialien, die handwerklich erstklassig ausgeführt werden, modernste Technik wie einem Wärmepumpensystem sowie eine sorgfältige Auswahl des Grundstückes sichern wir Werte und dauerhaften Wohnkomfort.
Ausstattung:
Energiesparende Effizienzhäuser 40 in bewährter RS-Wohnbau-Qualität
Um natürliche Ressourcen zu schonen und dem Projekt einen hohen Grad an Nachhaltigkeit zu verleihen, wird dieses mit modernster Wärmepumpentechnologie ausgestattet. Gleichzeitig wird seinen Bewohnern damit eine hohe Energieeffizienz (Energieeffizienzklasse A+) und in Folge auch ein hohes Maß an Wirtschaftlichkeit zur Verfügung gestellt. Für ein gesundes Wohnklima errichten wir das Projekt in massiver Ziegelbauweise mit darin integrierter Wärmedämmung.
Ganz in unserem Sinne: Modern - Nachhaltig – Wirtschaftlich - Zuverlässig
Objekthighlights:
- Hervorstechende, repräsentative Architektur im modernen und eleganten Stadtvillenstil
- energiesparendes Effizienzhaus 40 mit Energieeffizienzklasse A+
- hochwärmedämmende Massiv-Ziegelbauweise
- Komfortable Grundrisse mit sonnigen Balkonen und Terrassen
- Hocheffizientes und umweltfreundliches Wärmepumpensystem
- Fußbodenheizung mit Einzelraumsteuerung in allen Räumen
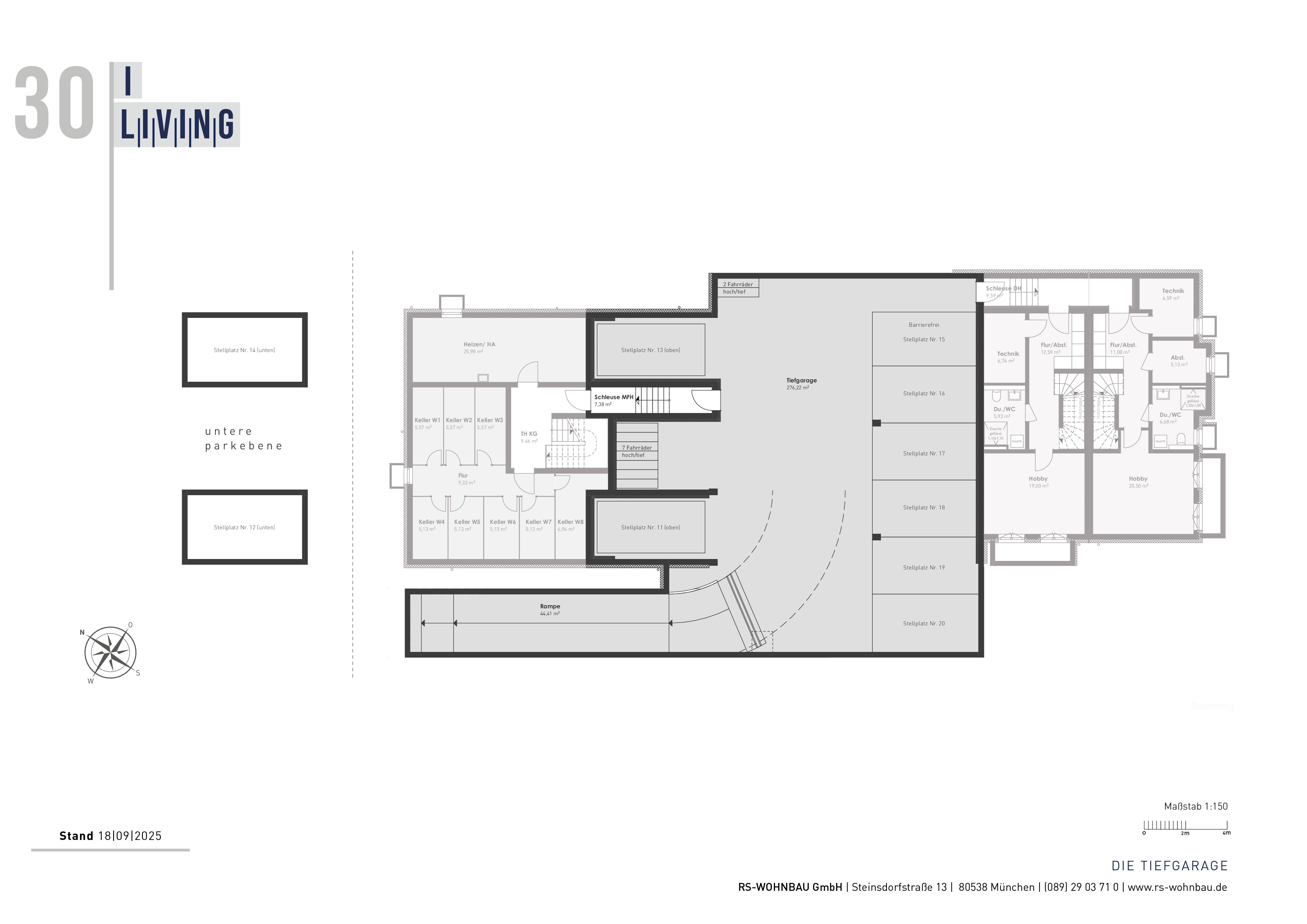
- Komfortable Tiefgarage mit Einzelstellplätzen & Stromanschluß
- hochbeständige und pflegeleichte Kunststofffenster mit hochwertiger Alu-Vorsatzschale, 3-fach Wärmeschutzverglasung und Sicherheitsfenstern im EG
- Treppenhaus mit hochwertigem Granitbelag und Edelstahlhandlauf
- elektrische Rollläden an allen Fenstern
- hochwertige Elektroausstattung mit CAT7 Verkabelung
- elegante Porzellanserie und formschöne Armaturen von namhaften Herstellern
- bodengleiche, geflieste Duschen (soweit technisch möglich)
- elegante Bodenbeläge (z.B. Eichenparkett oder Parkett nach eigener Wahl* in allen Wohn- und Schlafräumen)
- exklusive großformatige Fliesen, frei wählbar*
- Sonderwünsche nach Absprache möglich
* im Rahmen der in der Baubeschreibung festgelegten Richtpreise pro m². Die vollständige Baubeschreibung erhalten Sie gerne auf Anfrage!













